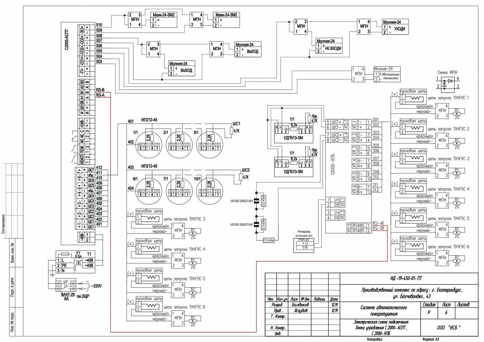
Автоматическое пожаротушение "Альянс-Моторс"
- 10 модулей порошкового пожаротушения МПП (Н)-10 (ст)-И-ГЭ-У2 («Тунгус»)
- Дистанционное управление
- Охранная и пожарная сигнализация
- Датчики оповещения и управления при пожаре
- Интеграция с существующим оборудованием
|
Менеджеры компании с радостью ответят на ваши вопросы, произведут расчет стоимости услуг и подготовят коммерческое предложение.
|
Заказать проект
|
